Overview
-
1648486
-
For Lease
-
2194 Square metres
-
202 sqm
Description
Retail Leasing Opportunity Upper Mount Gravatt
McGees Property are pleased to present 3 prime retail leasing opportunities at 9 Tryon Street, Upper Mount Gravatt.
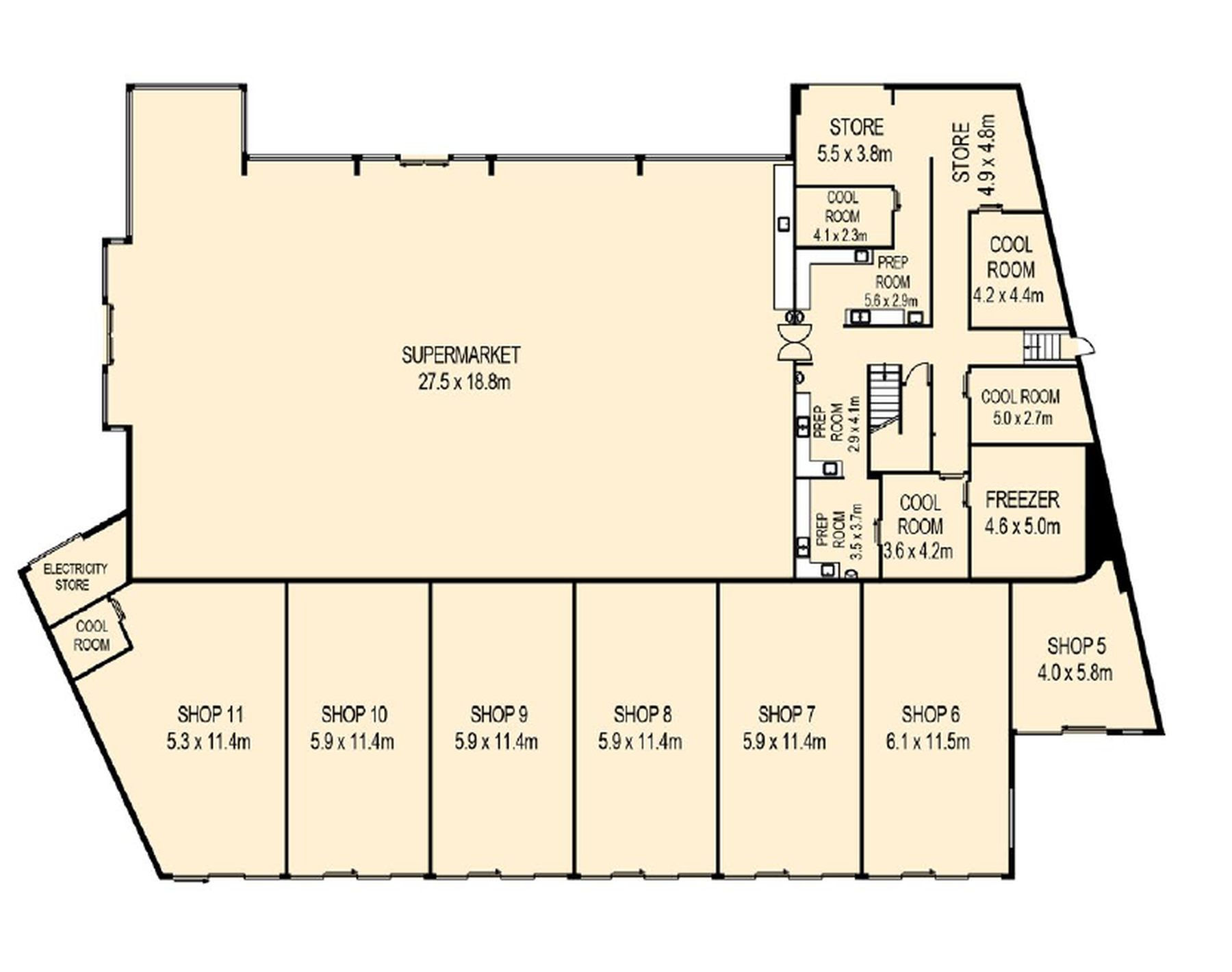
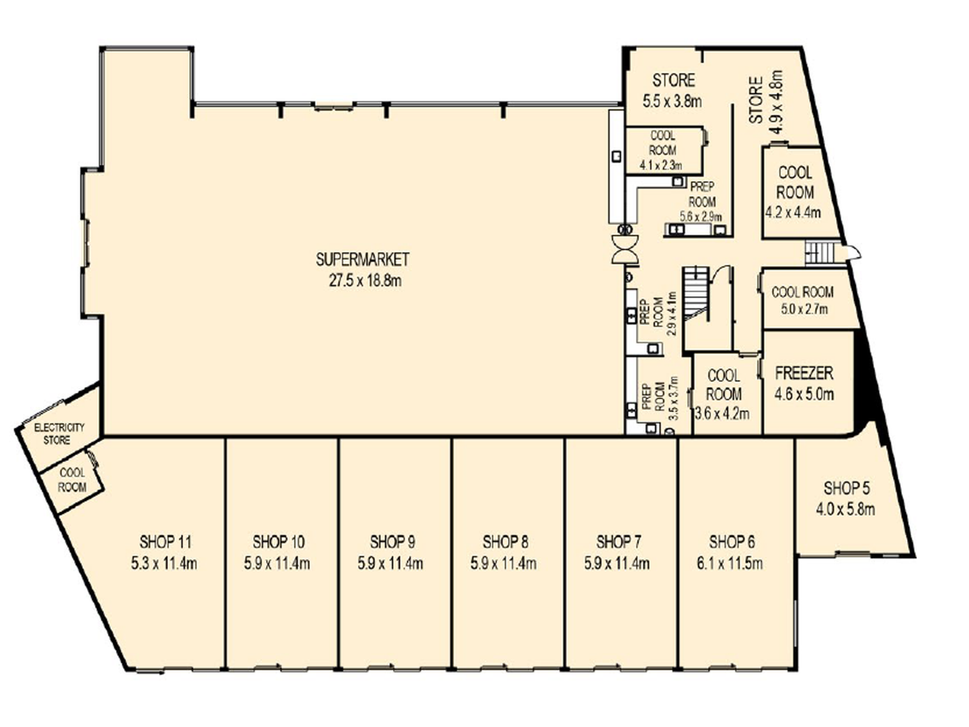
Available Tenancies:
* Tenancy 4: 39m²* - Blank canvass with grease trap connection
* Tenancy 8: 71m²* - Blank canvass with grease trap connection
* Tenancy 11: 97m²* - Blank Canvass with grease trap connection
Suited to a variety of users this high profile center offers 3 street frontage, great signage and and excellent onsite parking.
Positioned just 250m* from Westfield Mt Gravatt, this site enjoys excellent connectivity to major transport infrastructure including the Pacific Motorway, South-East Busway (Brisbane Metro), QEII Hospital, and Griffith University. Strategically located near Brisbane's key arterial routes-Logan Road, Kessels Road, Newnham Road, Klumpp Road as well as both the Pacific and Gateway Motorways, this location offers outstanding exposure and accessibility for a wide range of retail and service businesses.
For further information or to arrange an inspection, please contact the team at McGees Property today.
*Approximate area only.
















