Overview
-
1599665
-
For Lease
-
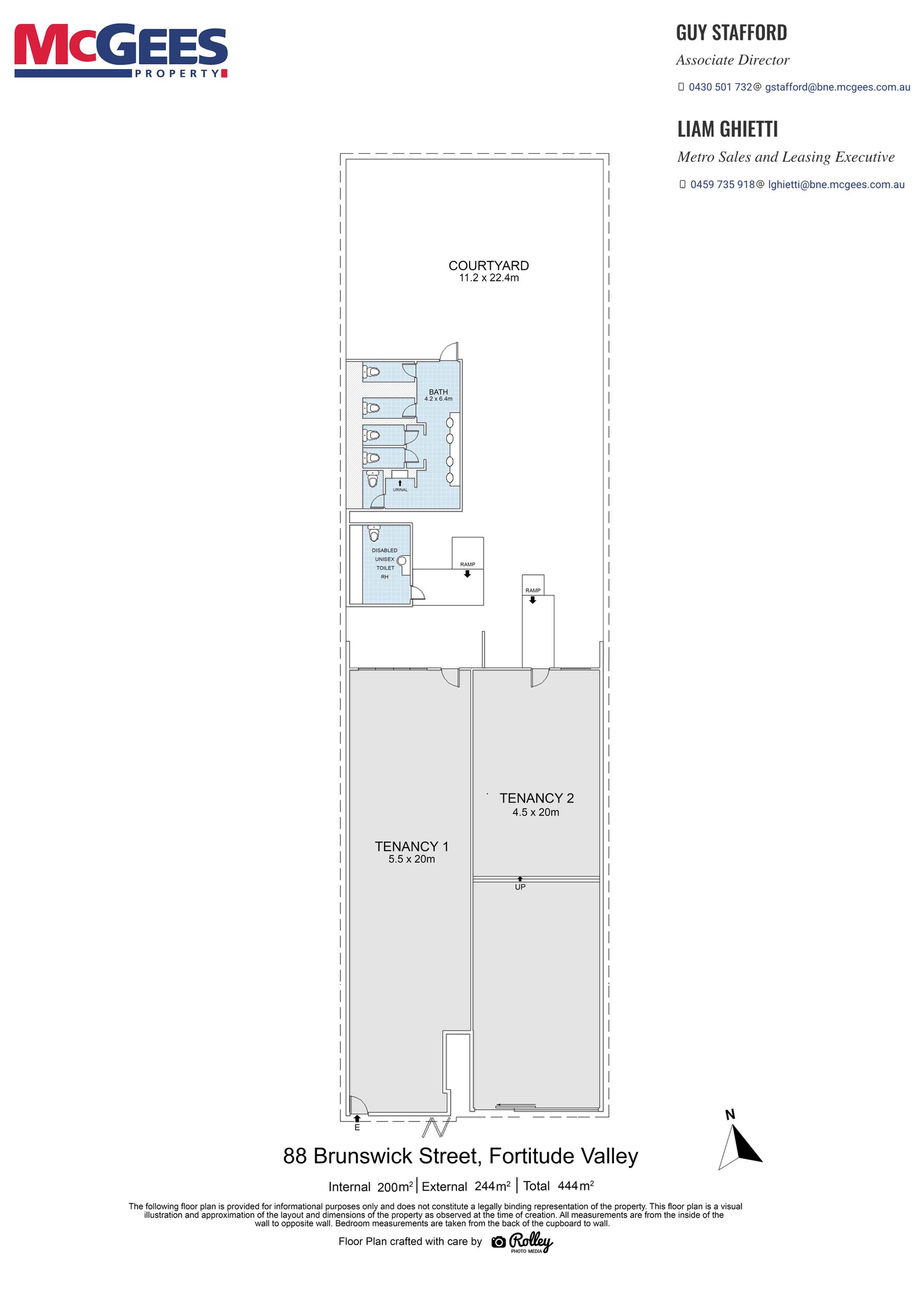
90 sqm
Description
Command the Valley - Character Retail Offering
Positioned in one of Fortitude Valley's most rapidly evolving pockets, this unique offering at 188 Brunswick Street is surrounded by a wave of new residential development-including over 1,000 units within a 300-metre radius. Set to further benefit from Frasers' 400-unit build-to-rent project next door (approximate completion August 2025), the site sits in the heart of future growth.
Neighbouring the ever-popular Netherworld Bar, this property presents as a standout location for a hospitality venue or bar, boasting an expansive 244sqm outdoor courtyard perfect for activations, events, or relaxed alfresco dining.
With flexibility at its core, this space also suits other uses including boutique fitness (such as HIIT or Pilates), creative office space, or destination retail.
Key Highlights:
• 200sqm internal area* across two street-facing tenancies
• 244sqm outdoor courtyard* with landlord open to installing permanent shade structure
• Newly renovated amenities including large accessible toilet
• 4 x wall-mounted air-conditioning units
• Flexible layout with opportunity to open up and combine tenancies internally
• Grease trap can be installed if required
• High foot traffic location next to Netherworld Bar and surrounded by high-density residential
• Suit hospitality, fitness, wellness, office or creative use
• Floor Plan Available
Optional Add-On:
Upstairs apartment/office available separately or as part of the tenancy
Please contact your exclusive agents from Mcgees property to find out more or to book in a time to inspect!
*Approximate





































